Pultdachhaus
In diesem Entwurf eines Massivhauses mit Pultdach haben wir uns für eine Variante mit einem versetzten Pultdach entschieden, bei dem zwei Dachflächen in unterschiedlichen Höhen und damit versetzt zueinander konstruiert werden. Eingesetzt wird es häufig um die Räume bis unter die Dachhaut zu führen, also ohne Spitzboden. So wirken die Zimmer sehr viel größer, als sie eigentlich sind.
Es bietet sich oft als Alternative zum eher konservativen Satteldach an und verleiht Ihrem Haus ein moderneres Outfit. Holzapplikationen, Oberlichter und Eckverglasungen sind die weiteren Zutaten für ein harmonisches Erscheinungsbild.
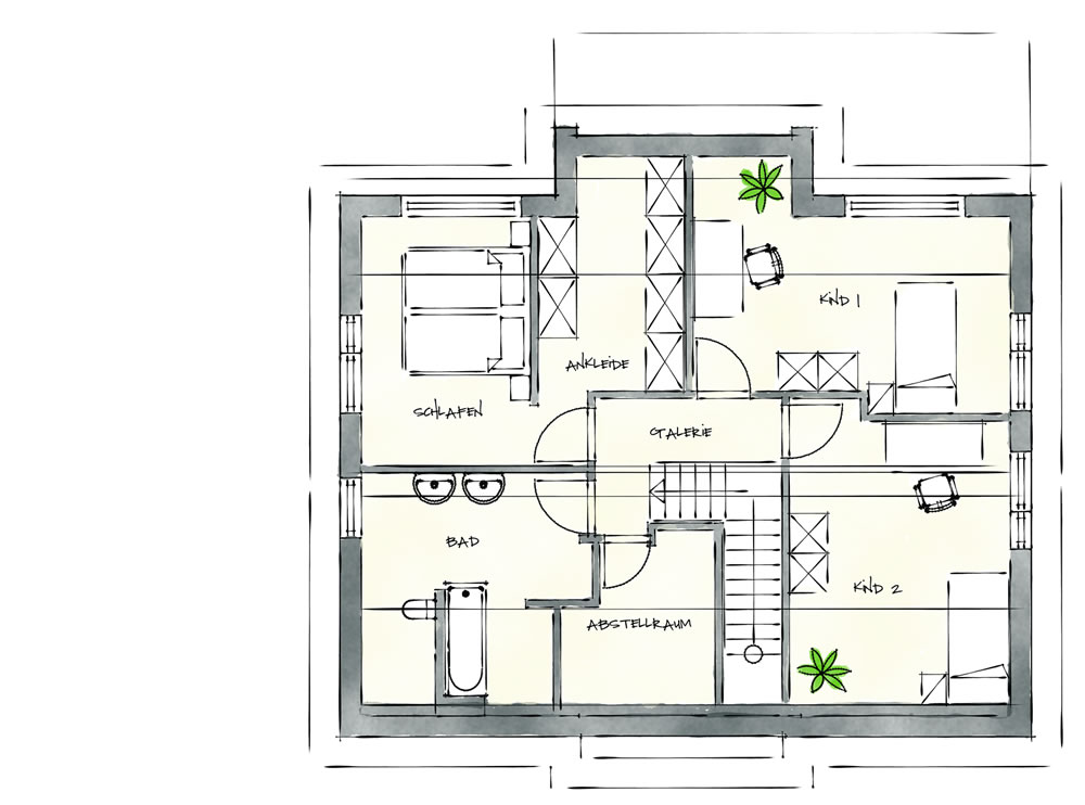
Auch das Innenleben kann natürlich wieder frei und individuell geplant werden. Damit aber alles funktional bleibt und nicht zu beengt wirkt, empfehlen wir hier eine Mindestgröße von 150 m² Wohnfläche. In unserem Entwurfs-Beispiel sind wir von der klassischen vierköpfigen Familie ausgegangen. Sollte sich aber später noch Nachwuchs ankündigen, kein Problem, dann steht immer noch das Gästezimmer im Erdgeschoss zur Verfügung.
Und als Umzugsentschädigung gibt es das eigene Duschbad. Sehr praktisch ist auch der zusätzliche Abstellraum im Dachgeschoss und wenn Sie möchten, platzieren wir hier auch die Anschlüsse für Waschmaschine und Trockner.
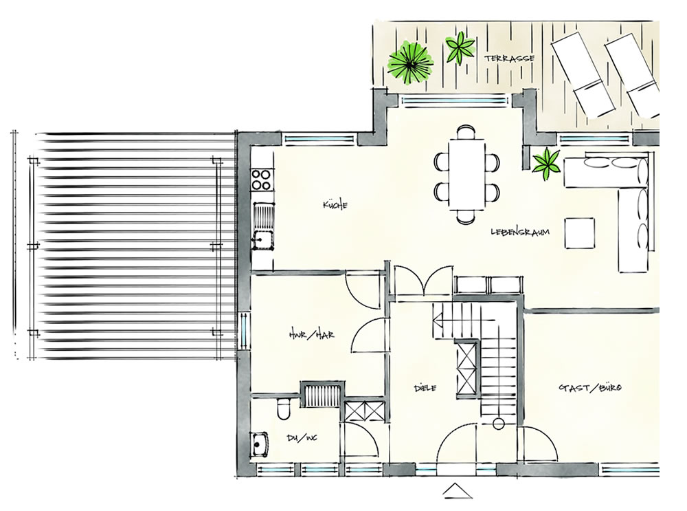
Erwähnenswert ist auch die Treppe mit einem Zwischenpodest. Diese sieht nicht nur gut aus, sondern ist auch komfortabler zu begehen. Die Haustüranlage, mit zwei verglasten Seitenteilen, leuchtet die geschickt positionierten Garderobennischen mit Tageslicht aus. Wir öffnen Ihnen gerne die Tür und sagen "Herzlich Willkommen"
